Das Areal Tschill befindet sich am östlichen Ortsrand der Gemeinde Naters. Es handelt sich um eine ruhige, von Einfamilienhäusern geprägte Wohngegend. Charakteristisch für die Lage ist der einmalige Blick Richtung Südwesten gegen das markante Glishorn.
Das Terrain zeichnet sich durch eine markante Hanglage im östlichen Bereich aus. Gegen Westen läuft das Gelände relativ sanft aus.
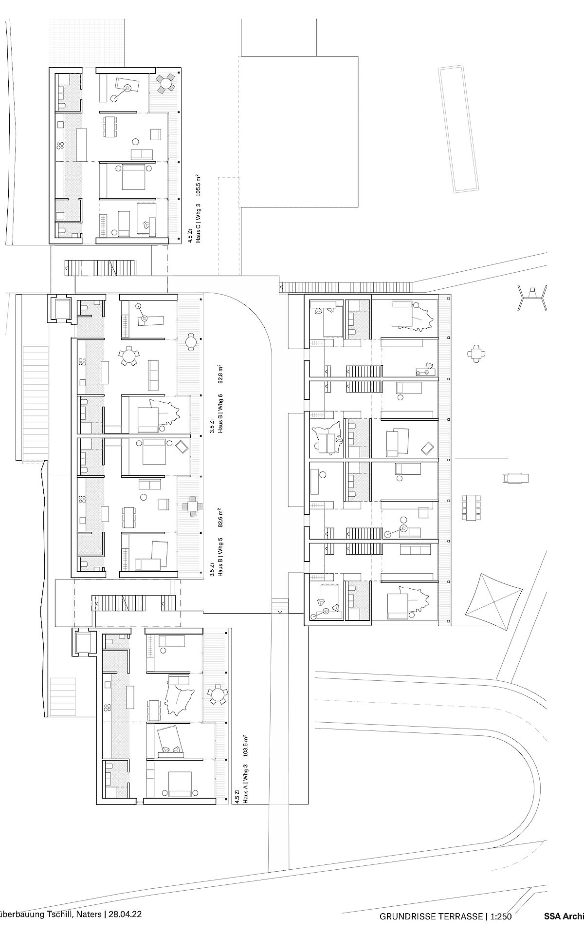
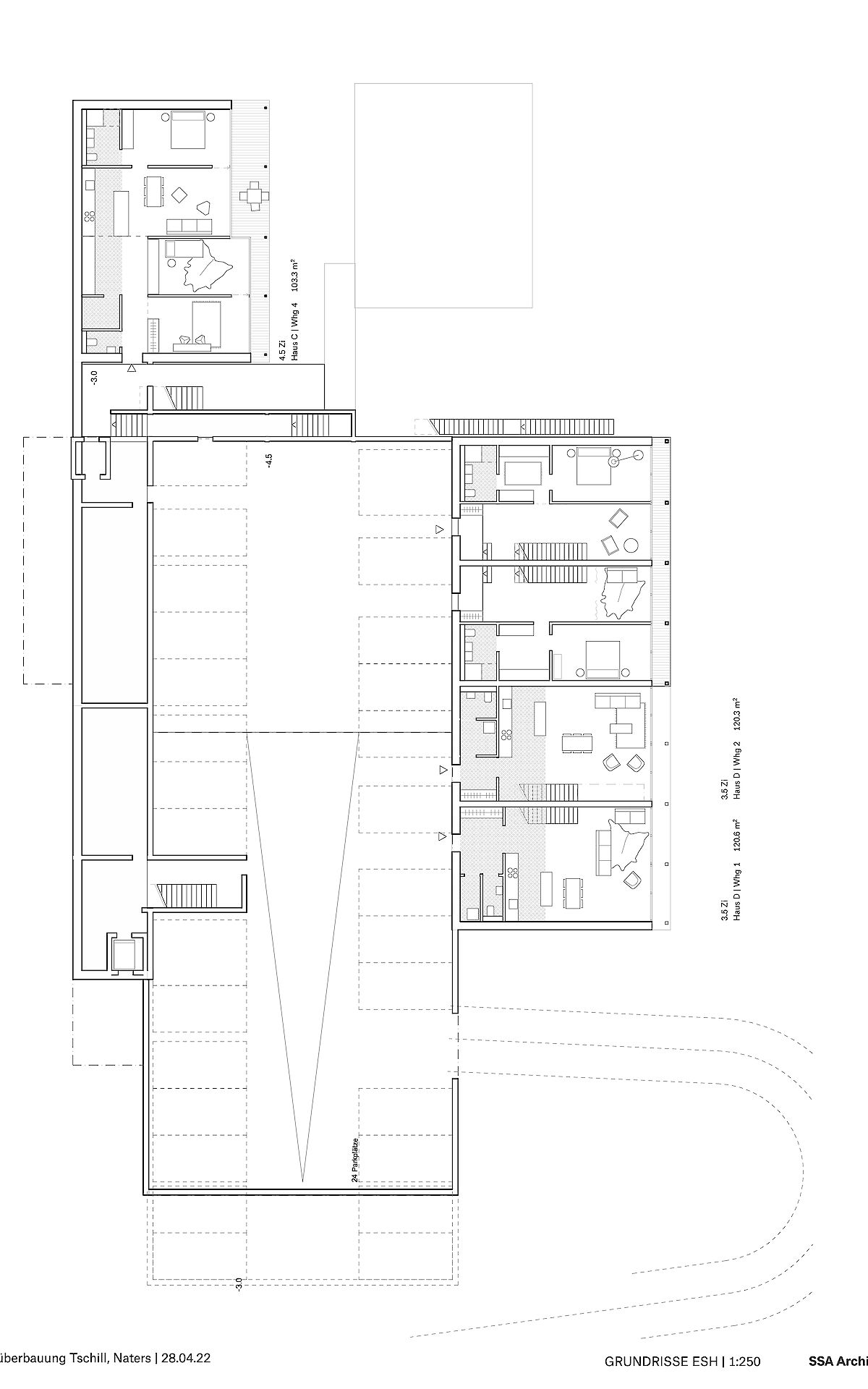
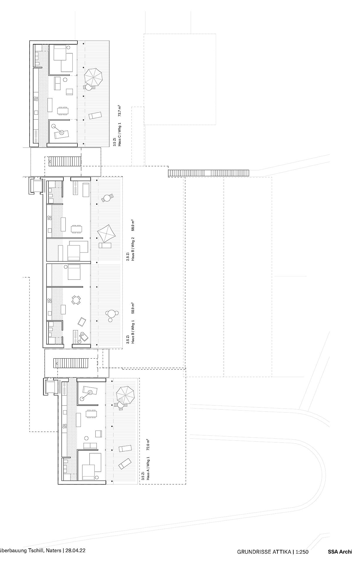
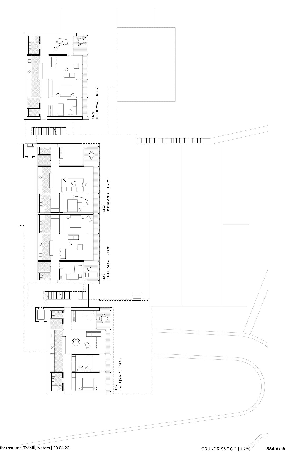
Aufgrund dieser ortsprägenden Topographie wurde eine spezielle Bebauungsform gewählt. Die Erschliessung der Bebauung erfolgt ab der Haselmattstrasse. An die bestehende Stützmauer der Strasse schliessen zwei mehrgeschossig Volumen, die sowohl Maisonette wie auch Geschosswohnungen aufnehmen, an. Zwischen den Bauten führt eine halboffen Treppenanlage auf die untere, zwischen den beiden Häuserzeilen liegende Ebene. Ab dieser Ebene werden die vier Reihenhäuser erschlossen.
AUFTRAGGEBER:
Privat
AUFTRAGSDAUER:
2002 und ab 2022
AUFTRAGSART:
Projektstudie
FLÄCHE:
2‘800 m2
VISUALISIERUNGEN:
© YOS, Zürich













